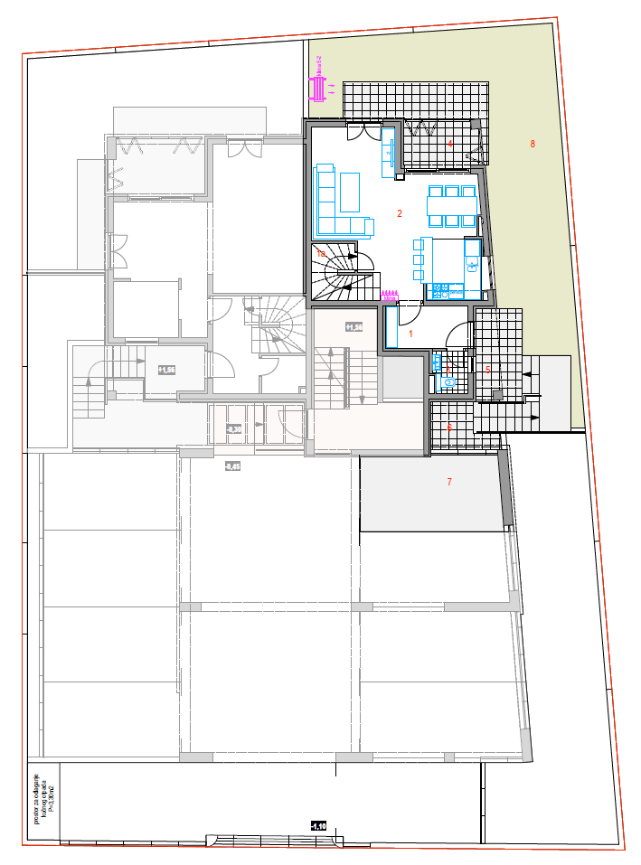
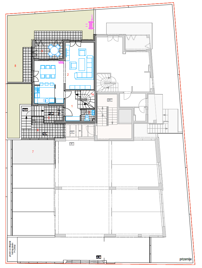
APARTMAN S1 – DUPLEKS 206 m2 cena: 399.500€ sa pdv-om | Prizemlje stana od 110m2 ima natkrivenu terasu, natkriven ulaz, vrt 52m2, „open space” dnevni boravak, trpezariju i kuhinju, kupatilom sa toaletom. Prvi sprat se sastoji od dve spavaće sobe, dva kupatila, natkrivene terase i lođe. Orijentacija zapad – pogled na centar mjesta i marinu. Parking mesto 15+7m2, spremište 5m2, ulaz 17m2. |
|
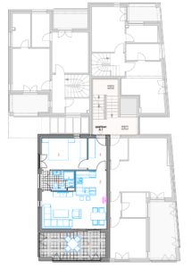
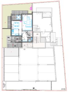
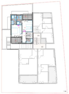
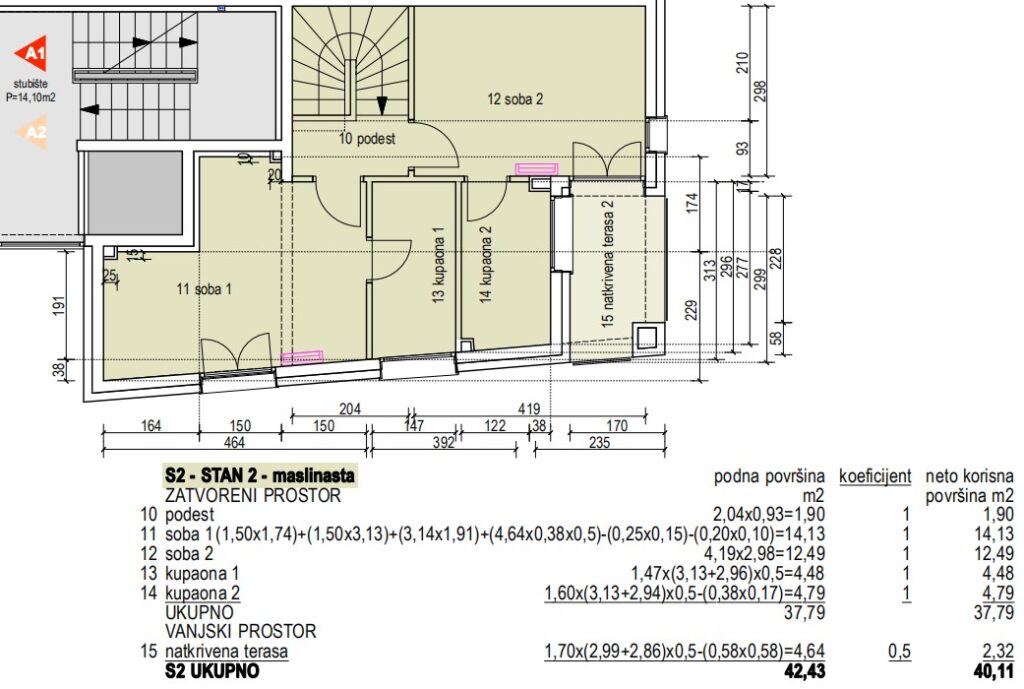
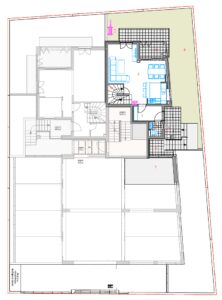
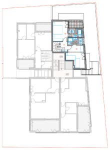
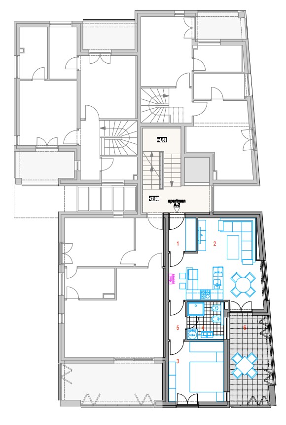
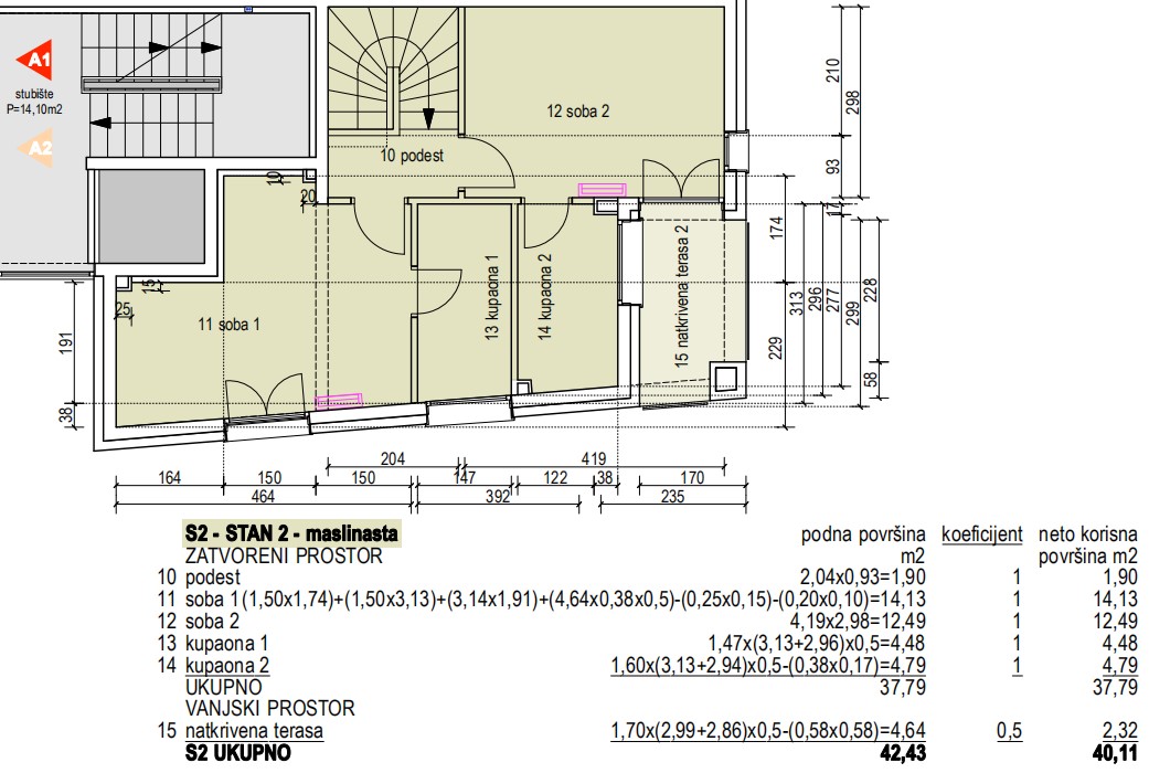
APARTMAN S2 – DUPLEKS 179m2 cena: 345.500€ sa pdv-om |
Prizemlje stana od 92m2 ima natkrivenu terasu, natkriven ulaz, vrt 51m2, „open space” dnevni boravak, trpezariju i kuhinju, toalet. Prvi sprat se sastoji od dve spavaće sobe, dva kupatila, natkrivene terase. Orijentacija – istok sa pogledom na morje in čudovitim pogledom na otoke. Parking mesto 14m2, spremište 5m2, ulaz 17m2. |

















